2 高精度滤油机—是一种预过滤并为系统注油及净化系统油液的设备
9 滤筒除尘器—安装方式分分为斜插式,侧装式,吊装式,上装式
10 自洁式空气过滤器—有效过滤掉生产过程排放的含有细小的污染物质
11 袋式除尘器—应用于冶金,铸造,矿山采掘,化工,水泥建材等
1 自洁式空气过滤器—适用于空压站,制氧站,空调送风系统,燃气轮机等
2 大流量滤芯—大直径设计,增加纳污量,延长使用寿命,降低生产成本
4 烛式过滤器—高效节能,密闭高精,维护简便,安全可靠等特点
6 天然气滤芯—应用于天然气 ,人工煤气及其他非腐蚀性气体等
10 LYC系列高精度滤油机—过滤新油,液压润滑系统工作时的旁路过滤等
13 滤筒除尘器—安装方式分分为斜插式,侧装式,吊装式,上装式
3 金属粉末滤芯—采用具有较高机械强度及整体钢性的新型过滤材料
4 制冷过滤器滤芯—用以滤除较大的杂质,保护油泵,延长滤芯使用寿命
5 吸油过滤器—安装方便,油通能力大,阻力小,更换滤芯方便等优点
7 压力管路过滤器—应用于重型机械,矿山机械,冶金机械等液压系统
8 大流量滤芯—大直径设计,增加纳污量,延长使用寿命,降低生产成本
10 PP微孔折叠滤芯—应用于电力,反渗透前级,石化,精细化工等领域
11 凝结水滤元—一般应用于电厂凝结水处理系统,过滤器内部安装滤元
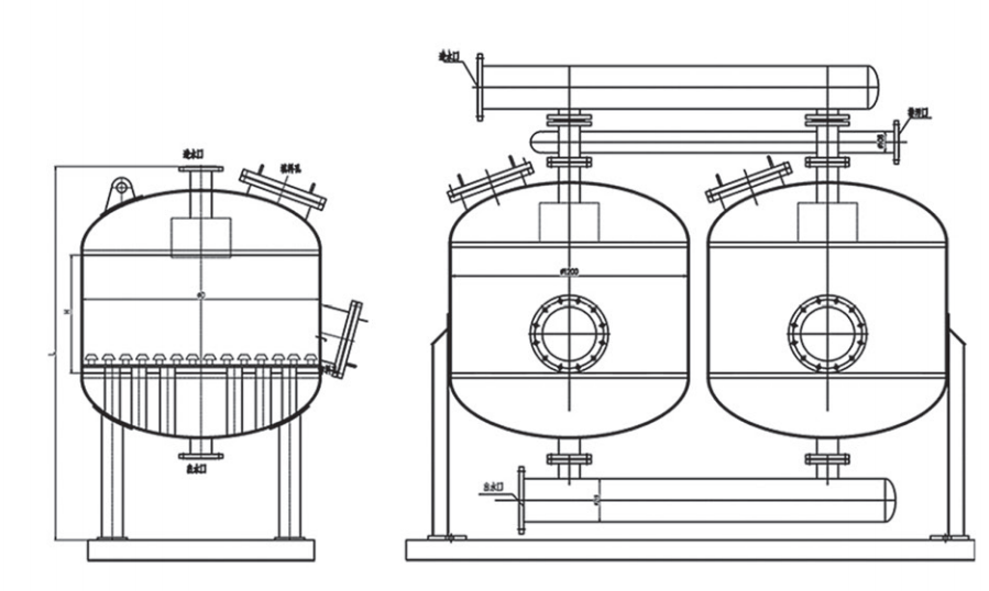
浅层砂过滤器的结构及运行原理您知道吗?
浅层砂过滤器是一种利用石英砂等颗粒滤料截留水中悬浮物和胶体杂质的过滤设备,具有结构简单、过滤效率高、维护方便等特点,广泛应用于工业循环水、污水处理、市政供水等领域。
过滤单元
滤料层:填充石英砂、无烟煤或锰砂等滤料,粒径一般为 0.8~1.2mm,滤层厚度通常为 800~1200mm,是截留杂质的核心区域。
布水系统:位于滤层下方,由配水支管和滤头(或筛网)组成,作用是均匀分布水流,防止短流和偏流。
2. 控制装置
多路阀:集成反洗、正洗、运行等功能,通过手动或自动(电动 / 气动)方式切换阀门状态,控制水流方向。
控制系统:包括时间控制器、压差控制器或 PLC 控制器,用于设定过滤周期、触发反洗条件(如压差≥0.05MPa 时自动反洗)。
3. 罐体与管路
罐体:多为圆柱形碳钢防腐或不锈钢材质,内部设有观察窗,便于观察滤料状态和水流情况。
管路系统:包含进水口、出水口、反洗进水口、反洗排水口等,通过管路连接实现水流的不同工况切换。

过滤阶段
水流方向:待处理水从罐体顶部(或侧面)进入,通过布水系统均匀分布至滤料层。
截留机制:
筛滤作用:水中粒径大于滤料间隙的悬浮物被直接截留。
吸附作用:滤料表面的微小孔隙和电荷吸附胶体、微生物等杂质。
出水水质:过滤后的水经底部布水系统汇集,从出水口排出,浊度可降至 5NTU 以下(具体取决于进水水质和滤料性能)。
2. 反洗阶段
触发条件:当滤层截留的杂质增多,导致进出口压差超过设定值(如 0.05MPa),或达到预设的过滤时间(如 8~12 小时),系统自动启动反洗。
反洗流程:
停止过滤:关闭进水阀,切断原水供应。
反洗进水:反洗水从罐体底部(或侧面)反向流入,流速通常为过滤流速的 3~5 倍(约 15~25m/h)。
滤料松动与清洗:高速水流使滤料层膨胀、翻滚,杂质从滤料表面脱落,随反洗废水从顶部排水口排出。
正洗确认:反洗结束后,开启进水阀进行短暂正洗,直至出水浊度达标,恢复过滤状态。
3. 关键技术特点
浅层过滤:采用较薄的滤层(通常≤1.2m)和较高的过滤流速(8~15m/h),通过缩短水流路径、提高滤料接触效率实现快速过滤。
均匀布水:布水系统设计为 “鱼刺型” 或 “环形” 支管,配合滤头(缝隙宽度 0.2~0.3mm),确保水流均匀分布,避免局部滤料过载。
节能反洗:反洗时仅需单个过滤单元停运,其他单元可继续运行(多单元并联系统),减少整体停机时间,反洗水量仅为处理水量的 1~3%。

工业循环水过滤:去除悬浮物,防止换热器结垢和微生物滋生。
污水处理预处理 / 深度处理:替代传统沉淀池,降低浊度,为后续生化或膜处理提供保障。
市政供水预处理:用于地下水除铁锰、地表水过滤,提升饮用水感官指标。
农业灌溉过滤:过滤河水、水库水中的泥沙和藻类,保护滴灌 / 喷灌系统。

| 优点 | 缺点 |
|---|---|
| 1. 结构紧凑,占地面积小 | 1. 滤料需定期更换或补充 |
| 2. 自动化程度高,操作简便 | 2. 对高浓度污水适应性差 |
| 3. 反洗耗水量低,节能性好 | 3. 单个罐体处理流量有限(需多罐并联) |

供暖
煤化工
电力
市政
关注官方微信平台
关注官方微博平台
关注官方百家号
关注官方抖音平台
关注官方快手平台
关注官方视频号平台



