一体化净水处理设备_海水淡化板块_过滤器_滤芯_滤油机_新乡市焦点娱乐滤器股份有限公司
新乡市焦点娱乐滤器股份有限公司
400-0089-277

主页 > 产品板块 > 海水淡化板块 > 一体化净水处理设备 >

一体化净水处理设备 设备简介 工作原理 设备优势 技术参数 产品细节 客户案例

设备简介

一体化净水处理设备

一体化净水处理设备

智能一体化净水设备以地表水作为原水,用地表水去除水中有害微生物、微小颗粒等,处理后出水水质符合《生活饮用水 卫生标准》(2006)要求的饮用水。是本焦点娱乐消化吸收国内外技术自 主开发的新一代净水设备,它具有施工周期快、综合投资省、布置紧 凑、灵活、占地面积少、出水水质优良、操作维护简单等特点,是城 镇给水、工矿企业给水净化的理想设备。

应用范围 城镇给水、工矿企业等中小型自来水净水站等饮用水供应场景
过滤介质 水中有害微生物、微小颗粒
咨询电话 400-0089-277

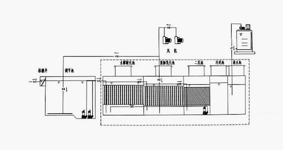
工作原理

一体化自动反冲净水器在设计上也充分考虑了各地区性的水质差异情况,在合理选取投药点的同时,增加了混凝反应功能,使装置 具有充分的混凝反应时间。并较保守地设计表面负荷,使设备更具有耐冲击负荷的能力,更适合地区不同的水质场合,过滤系统采用小阻力配水进行深层慢滤。

一体化净水设备原理图

设备优势

  • 工艺精湛

    一体化净水处理设备;
    让原水通过阴阳离子转化器,除去水中的,钙,镁,钠等离子,有效的防止水垢。

    工艺

    制作工艺:

    PVC管道管壁非常光滑,长期使用不易积垢,具有良好的水密性,且耐腐蚀

  • 操作简单

    通过水的流量和时间控制的方式发出指令给电磁阀或多路通伺服阀,来完成一体化净水处理设备的供水和再生

    操作

    操作简单:

    采用全智能设置,可实现无人操作,在控制面板可直接观察工作状态,无需专业人员指导

  • PE材质盐箱

    内衬无毒PE塑料的交换罐,PE材质的盐箱,足以保证该设备的耐腐蚀、抗污染、无毒无味等优异性能

    材质

    PE材质盐箱:

    采用优质聚丙烯材质,产品耐酸耐碱,不易老化,使用寿命长,保证水质检测符合国家饮用水标准

  • 智能控制

    全自动化程度高,供水工况稳定,使用寿命长。全程自动运行,只需人工定期加盐

    智能

    智能控制:

    一体化净水处理设备通过程序控制装置,实现离子交换和树脂再生过程的自动化,无需专人操作,安装简便。

技术参数

型号 处理量 设备尺寸
m³/h 沉淀罐 过滤罐
CYJ-FL-1 1 Φ600*3500 Φ600*2500
CYJ-FL-2 2 Φ800*3500 Φ800*2500
CYJ-FL-3 3 Φ1000*3500 Φ1000*2500
CYJ-FL-4 4 Φ1200*3500 Φ1200*2500
CYJ-FL-5 5 Φ1500*3500 Φ1500*2500
CYJ-FL-6 6 Φ1700*3500 Φ1700*2500
CYJ-FL-7 7 Φ1900*3500 Φ1900*2500
CYJ-FL-8 8 Φ2100*3500 Φ2100*3000
CYJ-FL-9 9 Φ2300*3500 Φ2300*3000
CYJ-FL-10 10 Φ2500*4000 Φ2500*3000
CYJ-FL-11 11 Φ2600*4000 Φ2600*3000
CYJ-FL-12.5 12.5 Φ2750*4000 Φ2750*3000
CYJ-FL-100 100 Φ4000*6000 Φ4000*5000

产品细节

  • 设备图片

  • 视频

  • 一体化净水处理设备生产图片1 一体化净水处理设备生产图片2 一体化净水处理设备生产图片3 一体化净水处理设备生产图片4 一体化净水处理设备生产图片5

客户案例

  • 河南某地宾馆酒店用水
    河南某地宾馆酒店用水

    用途:软化水质处理量:20t/h

  • 山东某钢厂锅炉用水
    山东某钢厂锅炉用水

    用途:去除水中钙镁离子处理量:50t/h

  • 湖北某洗衣房用水软化
    湖北某洗衣房用水软化

    用途:使得衣服柔软处理量:10t/h

定制服务流程

根据不同工况,提供定制服务

客服热线400-0089-277

AI-icon